Buerocontainer mieten
Flexible Raumlösungen für Ihr Projekt

Bürocontainer mieten

Anpassbare Raumlösungen für mobile Büros 

 

ELA Bürocontainer sind flexible Raumlösungen für jede Herausforderung: Als Interimsbüros während Umbauarbeiten sowie zur kurz- oder langfristigen Erweiterung Ihrer Büroräume sind sie ideal einsetzbar. Richten Sie ein Projektbüro schnell und einfach ein und nutzen Sie die flexiblen Räumlichkeiten für effiziente Arbeitsabläufe. 

Vorteile
Komfortables Raumklima
Beliebig kombinier- und flexibel erweiterbar
Individuelle Raumlösungen und -größen
Ausstattung mit Heizung, Rollläden und Strom
Vorhandene Anschlüsse und Elektrik
Buerocontainer mieten 2
Moderne, angenehme Arbeitsumgebung

Effektiv arbeiten in Bürocontainern von ELA

Die individuelle Raumaufteilung ermöglicht es Ihnen, Ihre Container als Büro und als Seminarraum zu nutzen. Große Fenster und energiesparende Split-Klimageräte schaffen ein optimales Raumklima und eine angenehme Arbeitsumgebung mit viel Tageslicht.
Zusätzlich können wir Ihre Bürocontainer mit einer Küche oder Sanitäranlagen ausstatten. Bei Bedarf kann ein separater Technikraum für Ihre IT-Infrastruktur eingerichtet werden. 

Mehr Details
Mehr Platz für ein besseres Raumgefühl

1/2 Meter breitere Bürocontainer mieten

Unsere Bürocontainer sind in der 2,5 Meter Standardbreite und 3 Meter Extrabreite erhältlich. Die 3 Meter breiten Bürocontainer bieten 20 % mehr Platz für ein besseres Raumgefühl und noch mehr Einrichtungsmöglichkeiten.

Mehr Details

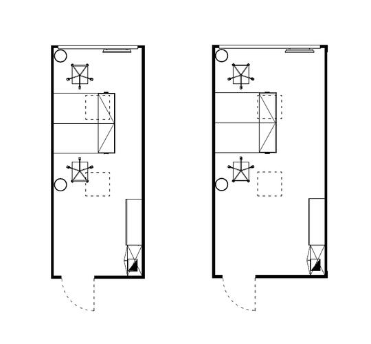
Planungsbeispiele für Bürocontainer

Anhand unserer Planungsbeispiele sehen Sie, wie kleine, mittelgroße und große Bürocontainer-Anlagen aussehen können und welche Raumaufteilungen möglich sind. Gemeinsam mit uns gestalten Sie die perfekte Lösung für Ihr Projekt.

Ihre persönliche Fachberatung vor Ort
Passende Referenzen

Entdecken Sie unsere Bürocontainer

Wenn Sie diesen 3D-Rundgang nicht sehen können, akzeptieren Sie bitte unsere Cookies.

buerocontainer-mieten30
Ausstattungspaket für mobiles Büro

Passende Möbel für Ihren gemieteten Bürocontainer

Wählen Sie das Mobiliar für Ihr mobiles Büro genau nach Ihren Bedürfnissen aus. Unser Mobiliarpaket Büroraum enthält folgende Grundausstattung für zwei Personen:


•    2 Tische à 160 × 78 cm
•    2 Rollcontainer
•    2 Drehstühle mit Armlehne
•    1 Aktenschiebeschrank
•    1 Aktenstahlschrank
•    2 Papierkörbe

Buchen Sie das Mobiliarpaket über das Kontaktformular oder in Absprache mit Ihrem:Ihrer persönlichen Fachberater:in vor Ort.

Mehr Details
Besprechungs- und Pausenraum einrichten

Mobiliarpaket für Besprechungs- und Pausenräume

Besprechungs- und Pausenräume benötigen Mobiliar, das Sie bei uns einfach dazubuchen können. Das Paket für 12 Personen enthält:


•    3 Tische à 120 × 78 cm
•    12 Polsterstühle
•    1 Aktenschiebeschrank
•    1 Papierkorb

Auch das Paket für Besprechungs- und Pausenräume buchen Sie direkt über das Kontaktformular oder bei Ihrem:Ihrer persönlichen Fachberater:in vor Ort.

Mehr Details
Weitere Raumlösungen für Bürogebäude

Um Ihren mobilen Bürokomplex bestmöglich zu nutzen, bieten wir Ihnen weitere Raumlösungen wie Seminarräume, Aufenthaltsbereiche mit Küchenzeile und Sanitärräume an. Natürlich können Sie bei uns auch Bürocontainer kaufen

buerocontainer-mieten23
Bürocontainer mit Basisausstattung mieten

Grundausstattung passend für Ihre Raumlösung

Unsere umfangreiche Grundausstattung bietet Ihnen vielseitige Nutzungsmöglichkeiten. Egal, ob Besprechungs- und Seminarräume, Aufenthaltsbereiche mit Küche oder Sanitärräume – unsere Bürocontainer sind mit allen wichtigen Ausstattungsmerkmalen versehen, um Ihren Anforderungen gerecht zu werden. Dazu zählen etwa verschiedene Wechselrahmenelemente, Heizung, Rollläden, LED-Leuchten und Steckdosen.

Mehr Details
Grundausstattung individuell ergänzen

Individualisierung und Erweiterung Ihres Bürocontainers

Neben der Grundausstattung haben Sie viele Möglichkeiten, Ihren Bürocontainer von ELA nach Ihren Wünschen zu gestalten. Mit zusätzlichen Erweiterungen erhöhen Sie den Komfort und die Funktionalität Ihres mobilen Büros. Ihr:e persönliche:r Fachberater:in bei ELA berät Sie individuell zu Ihren Möglichkeiten und hält Preislisten für das Mieten Ihres Bürocontainers für Sie bereit.

Mehr Details
Ihre Zusatzoption für optimalen Schutz

Containerschutz: Das Sorglospaket für ELA Mietcontainer

Mit dem ELA Containerschutz versichern Sie Ihre gemieteten Bürocontainer vor Schäden durch extreme Wettereinflüsse, Vandalismus, Einbruch oder Diebstahl. Anfallende Reparaturen übernimmt ELA für Sie. Im Datenblatt finden Sie alle wichtigen Informationen und Ansprechpersonen auf einen Blick.

Alle Informationen zum Versicherungsschutz

Mehr Details

FAQ

Sollte ich einen Bürocontainer kaufen oder mieten?

Ob Sie einen Bürocontainer mieten oder kaufen sollten, hängt von Ihrem Vorhaben ab: Benötigen Sie langfristig oder wiederkehrend einen Bürocontainer, ist der Kauf in der Regel die beste Wahl. Möchten Sie ihre Büroräume nur kurzfristig erweitern oder übergangsweise nutzen, kann die Miete die preisgünstigere Option sein. Zudem sind die Anforderungen für Baugenehmigungen bei kürzeren Nutzungsdauern von unter zwei Jahren geringer. Wir beraten Sie gern individuell zu Ihrem Vorhaben. Denn bei ELA kaufen und mieten Sie unter anderem auch Wohncontainer, mobile Sanitär- oder Verkaufsräume.

Wie ist das Raumklima in den Bürocontainern?

Eine effektive Wärmedämmung und Isolierung sorgt für ein gleichbleibendes Raumklima mit angenehmer Temperatur. Eine Heizung ist bereits in der Grundausstattung enthalten. Unsere zubuchbaren Split-Klimageräte bieten den Vorteil, dass sie sowohl heizen als auch kühlen können und somit ein ganzjährig optimales Raumklima ermöglichen. Wenden Sie sich bei spezifischen Fragen an Ihre:n persönliche:n Fachberater:in vor Ort. Wir unterstützen Sie gerne bei allen Anliegen.

 

Wie funktioniert die Internetverbindung?

Der Netzwerkanschluss wird kundenseitig bereitgestellt. Bei Bedarf installieren wir aktive Kabelkanäle (ActivePort), die einen Anschluss an das Netzwerk und optional auch eine WLAN-Verbindung ermöglichen. Zudem besteht die Möglichkeit, neben einem Büro im Mietcontainer auch einen Technik- bzw. Serverraum einzurichten.

 

 

 

Unsere Bürocontainer in Ihrem Bundesland mieten

Hotline
Fachberatung vor Ort